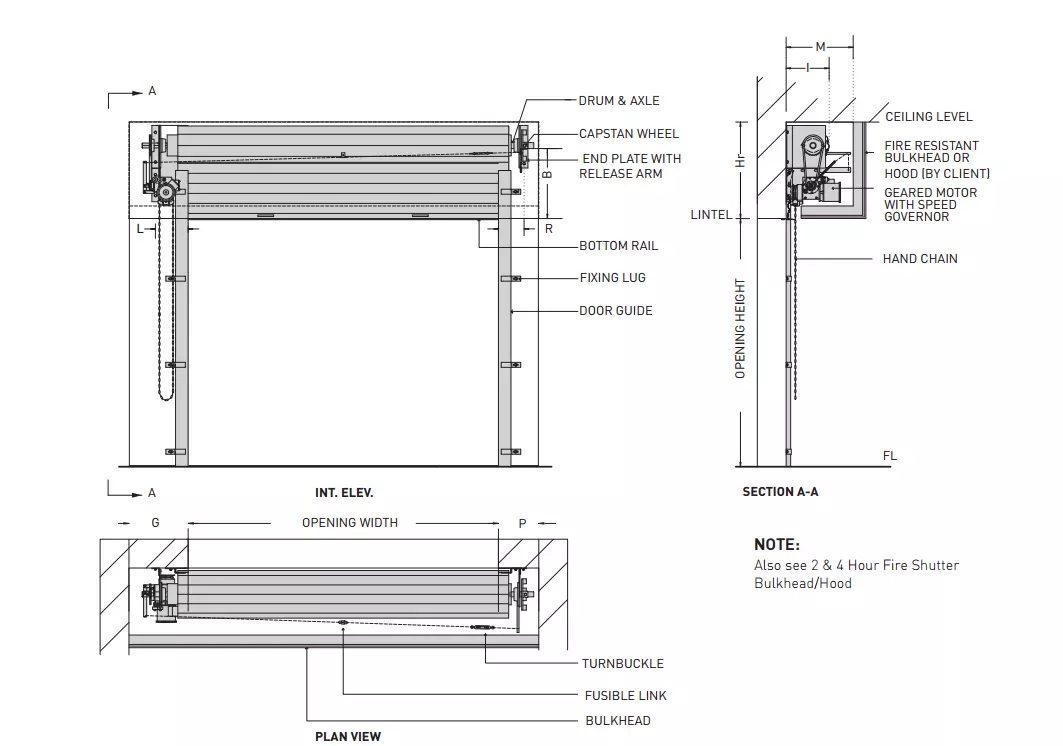
Automatic Fire Rated Rolling Shutters
The Benefits of Fire-Rated Doors:
- Security: Fire doors are made from durable steel, protecting businesses 24/7.
- Our commercial roll-up fire doors and shutters offer benefits for facilities of any size, including:
- Insulated: Insulated fire doors provide climate control, reduced energy usage and sound-deadening qualities.
- Code enforcement: Our rolling fire doors are UL listed for fire protection ratings of 3/4, 1 1/2, two and four hours.
- Protection: Our advanced fire door operating systems automatically activate thermally or electronically.
Automatic Fire Rated Rolling Shutters in Bangladesh
Fire Rated Rolling Shutters are physical barriers that protect wall openings from spread of fire. Fire-rated doors are rolling doors that are specifically designed for fire-rated openings. In the event of a fire, they are designed to stop the spread of smoke and flames through a building. Fire doors are required by building codes and make an excellent proactive measure for preserving property and reducing liability in the event of a fire. They provide automatic closing in the event of fire detection. Varito fire rated rolling shutters are in the store which appear and function in the same manner as traditional single motorized rolling shutters. The only difference is the material used and the fitting type. These fire rated rolling shutters are designed to stay open under normal circumstances. In the event of fire shutter close automatically to prevent the spread of fire to neighboring areas.
Product Description:
Varito fire-rated shutter is a barrier designed to prevent flames or hazardous smoke from spreading during a fire. These doors have ratings based on how long they are proven to withstand a fire. You can order Varito steel roll-up doors with fire ratings of 45 minutes, 90 minutes, three hours or four hours. The fusible integrated links melt at 74° C, this triggers the fire shutters to close automatically in the event of a fire. Find a variety of custom-manufactured roll-up fire service doors, Varito insulated fire doors and fire-rated counter shutters to find the right fit. Our overhead roll-up doors combine all the great features you have come to expect in a quality Varito product with the added benefit of superior fire protection. At Cookson, our fire door systems are the solution for building owners and designers demanding the highest level of life safety and fire protection. We manufacture affordable doors for modern protection in packages easy to incorporate into your build.

Varito fire Shutters are an increasingly popular option and offer fire protection at up to four hours greater than would be the case for a standard non fire rated door or shutter. They can be used to section off and protect a particular part of a building, the whole building, or even provide protection between floors (horizontal fire shutters). Fire Shutters help many businesses to ensure that they protect their goods, buildings and employees from the threat of fire by offering potentially significant delays to the spread of fire.
The Benefits of Fire-Rated Doors:
- Security: Fire doors are made from durable steel, protecting businesses 24/7.
- Our commercial roll-up fire doors and shutters offer benefits for facilities of any size, including:
- Insulated: Insulated fire doors provide climate control, reduced energy usage and sound-deadening qualities.
- Code enforcement: Our rolling fire doors are UL listed for fire protection ratings of 3/4, 1 1/2, two and four hours.
- Protection: Our advanced fire door operating systems automatically activate thermally or electronically.
Installing Fire-Rated Doors or Shutters:
Exits: The exterior of a building offers a strong defense from approaching flames and flames spreading from within. Maintain the wall of protection with fire-rated steel doors.
Elevators: During fires, elevators become chimneys, feeding the flames. Elevator smoke shields prevent smoke and other gases from traveling through the shaft, minimizing the spread of fire and smoke and reducing building damage.
Equipment: Equipment malfunctions can create flames, which can spread to adjoining areas. Placing rolling fire doors between maintenance areas and the rest of a building increases fire safety.
Shutters: Commercial counters can be a weak point, but not with the proper closure and countertops. We offer fire-rated counter shutters with fire-rated countertops in a range of finishes for added security and safety
What Is a Fire-Rated Door?
A fire-rated door or counter shutter is a barrier designed to prevent flames or hazardous smoke from spreading during a fire. These doors have ratings based on how long they are proven to withstand a fire. You can order Cookson steel roll-up doors with fire ratings of 45 minutes, 90 minutes, three hours or four hours.
Our fire-rated and smoke-rated products include:
Elevator Shaft Smoke Curtain: The most design adaptable option in the industry, Elevator is a hoist way smoke enclosure that eliminates the IBC elevator lobby requirement.
Roll-up fire doors: In the event of a fire, limiting property damage and protecting life has never been so easy than with Cookson roll-up fire doors. These rated structural fire barriers are designed to stop the spreading of fire and smoke, keeping the event isolated by compartmentalizing specific spaces within the building.
Insulated Rolling Fire Door: This door is perfect for a building's exterior but can be expanded later. Installing a fire door in areas that need climate control is not an issue either, as our roll-up fire doors offer an insulated core that increases energy efficiency. When you need to protect points of egress and wall openings, Cookson counter fire doors are the perfect solution.
Counter fire door: Rolling fire-rated counter shutters close automatically during a fire for the protection of wall openings. Commercial fire shutters can also provide function daily as added security.
Fire-rated closing systems: When it comes to fire-rated closing systems, Cookson’s advanced engineering, technology and design patents make it one of the world’s leading manufacturers. Fire-rated manual door operators are best-suited for counter shutters that are not used frequently or are too small for a motor operator. Motor operators are durable, long-lasting and compatible with the main controls of your building for ease-of-use.
Auto-Test Fire Door Product Systems: Our fire-rated doors will actuate all fire doors to close when connected to fire detection devices, smoke detectors or building alarm systems. Cookson Auto-Test Fire Door Products Systems activate through signals sent by smoke detectors or building alarms.
| Call for Price | No |
|---|---|
| Brand | Varito |